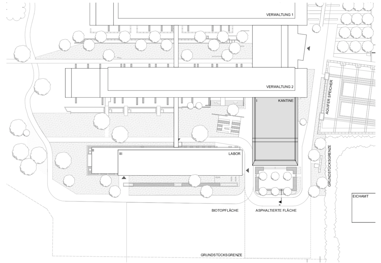
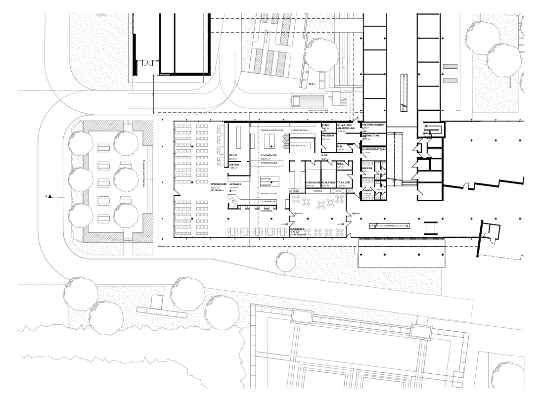
Planung2019AusführungMachbarkeitsstudieBruttogrundfläche380 m²Bruttorauminhalt1.938 m³
Diese Website verwendet Cookies, um Ihnen die bestmögliche Funktionalität bieten zu können.
Unsere Website verwendet Cookies. Das sind kleine Textdateien, die Ihr Webbrowser auf Ihrem Endgerät speichert. Cookies helfen uns dabei, unser Angebot nutzerfreundlicher, effektiver und sicherer zu machen. Einige Cookies sind “Session-Cookies.” Solche Cookies werden nach Ende Ihrer Browser-Sitzung von selbst gelöscht. Hingegen bleiben andere Cookies auf Ihrem Endgerät bestehen, bis Sie diese selbst löschen. Solche Cookies helfen uns, Sie bei Rückkehr auf unserer Website wiederzuerkennen. Mit einem modernen Webbrowser können Sie das Setzen von Cookies überwachen, einschränken oder unterbinden. Viele Webbrowser lassen sich so konfigurieren, dass Cookies mit dem Schließen des Programms von selbst gelöscht werden. Die Deaktivierung von Cookies kann eine eingeschränkte Funktionalität unserer Website zur Folge haben. Das Setzen von Cookies, die zur Ausübung elektronischer Kommunikationsvorgänge oder der Bereitstellung bestimmter, von Ihnen erwünschter Funktionen (z.B. Warenkorb) notwendig sind, erfolgt auf Grundlage von Art. 6 Abs. 1 lit. f DSGVO. Als Betreiber dieser Website haben wir ein berechtigtes Interesse an der Speicherung von Cookies zur technisch fehlerfreien und reibungslosen Bereitstellung unserer Dienste. Sofern die Setzung anderer Cookies (z.B. für Analyse-Funktionen) erfolgt, werden diese in dieser Datenschutzerklärung separat behandelt.